Information

Information

Björkplantagen Bostäder

Örnsköldsvik

Björkplantagen är ett bostadsprojekt i Järved, Örnsköldsvik bestående av 6 huskroppar i modern stil. Byggnaderna ligger placerade längs Järvedsleden i en sluttning med fantastisk utsikt mot hamninloppet.

Med inspiration från namnet Björkplantagen har fasaden på två av husen utformats med ett mönster av en björkskog i grafisk betong. Sockelvåningen har ett mönster av hur marken i en björkskog kan se ut och för våningarna ovan sträcker sig björkstammarna upp mot himlen.

De övriga fyra husen har en lätt strukturerad svartfärgad betongfasad där fönster, dörrar och balkongräcken bryter av i en guldfärgad kulör.

En central del i utformningen har varit att ta vara på havsutsikten med stora balkonger som tar upp hela huskroppens bredd i söder mot sluttingen samt rymliga hörnbalkonger för de bakre lägenheterna. Samtliga balkonger är omgärdade med träpanel för en varmare känsla.

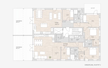
Lägenheterna är generellt sett rymliga med stort fokus på generösa kök och vardagsrum med direkt koppling till den rymliga balkongen. På vinden har varje hus två vindsvåningar under ett låglutande pulpettak. Vindslägenheterna är samtliga på över 100 kvadrat och har extra kvaliteér så som egen bastu och en masterbedroom med tillhörande klädkammare och badrum. Takhöjden i lägenheternas främre del är hela 4,3 meter och från det kommer man ut på en egen terass på ca 40 kvadrat.

För mer information se projektets hemsida: Björkplantagen

Ladda ner ISO information Sigillet är utfärdat av UC AB. Klicka på bilden för information om UC:sRiskklasser. Vi är ett kreditvärdigt företag enligt Bisnodes värderingssystem som baserar sig på en mängd olika beslutsregler. Denna uppgift är alltid aktuell, informationen uppdateras dagligen via Bisnodes databas.
By Formsmedjan. Powered by Yago